Architecture by MCV

Quincy Street Extension

Type Two-Family, Extension & Full Renovation
Location Bedford-Stuyvesant, Brooklyn, NY
Size 3,350 sf + 750 sf enlargement
Status Approved / Unbuilt
Services Architecture, Schematic Design, Permitting Construction Admin

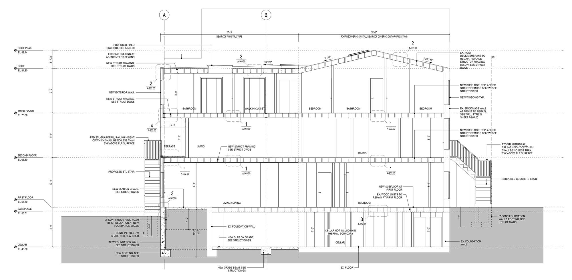
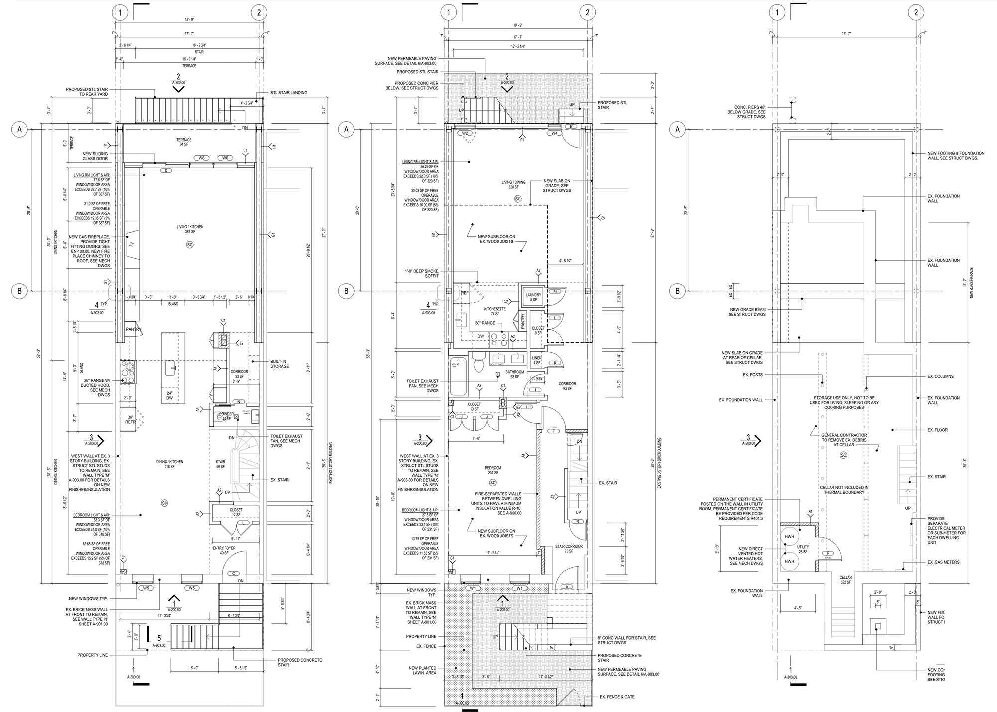
Facing a structure in major disrepair, MCV prioritized a sustainable adaptive reuse approach that salvaged as much of the original building as possible. Rather than a full demolition, we carefully stitched a new three-story extension onto the rear of the existing frame, dramatically increasing the site’s density and square footage while minimizing the project's environmental impact.

Our team provided comprehensive architectural services, from the initial zoning analysis and schematic design to permitting and construction administration to ensure a seamless transition between the restored original fabric and the modern addition.

Drawings

Collaborators
Plumbing/Mechanical: All City Engineering, P.C.
Structural: NTD Engineering Consultant LLC
Expediting: Commercial Capital USA INC

Next Project

Next Project ⇢